网站首页
公司简介
产品展示
新闻中心
图片中心
联系我们
玻璃单元门图纸
搜索:
图片中心分类:
行业案例
荣誉资质
客户视察
玻璃单元门图纸
公司相册
视频展示
车间一角
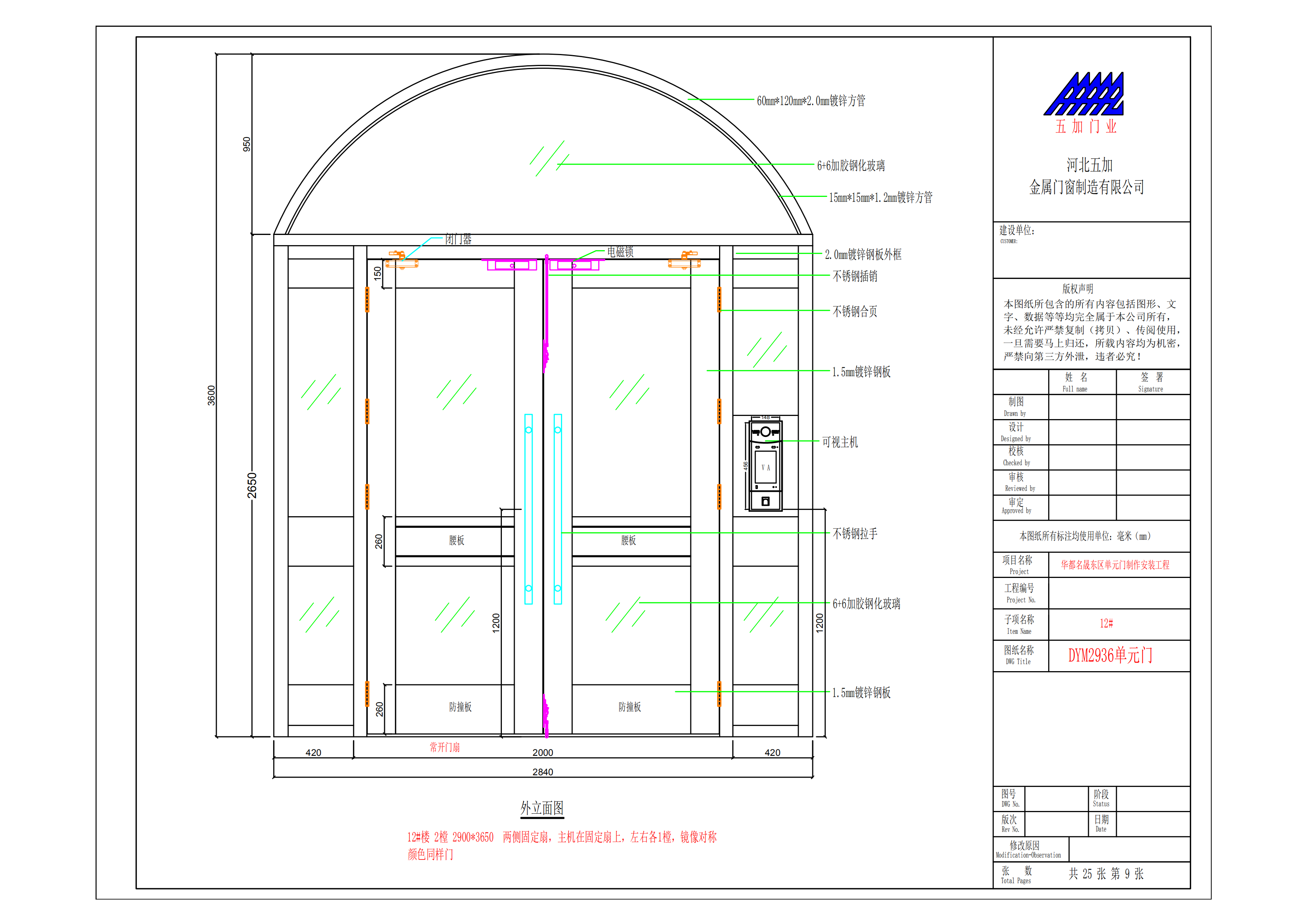
华都名晟单元门_09
作者:admin 日期:2020.04.23
上一条:华都名晟单元门_24
下一条:华都名晟单元门_08
返回列表